Поделиться объявлением
6 773 241 ₽
105 964 ₽/м2
Ипотека от 52 293 руб/месяц
Номер квартиры
4
Вариант отделки
без ремонта
Стадия готовности
Строится
Корпус
Жилой дом
Саранск, Ленинский
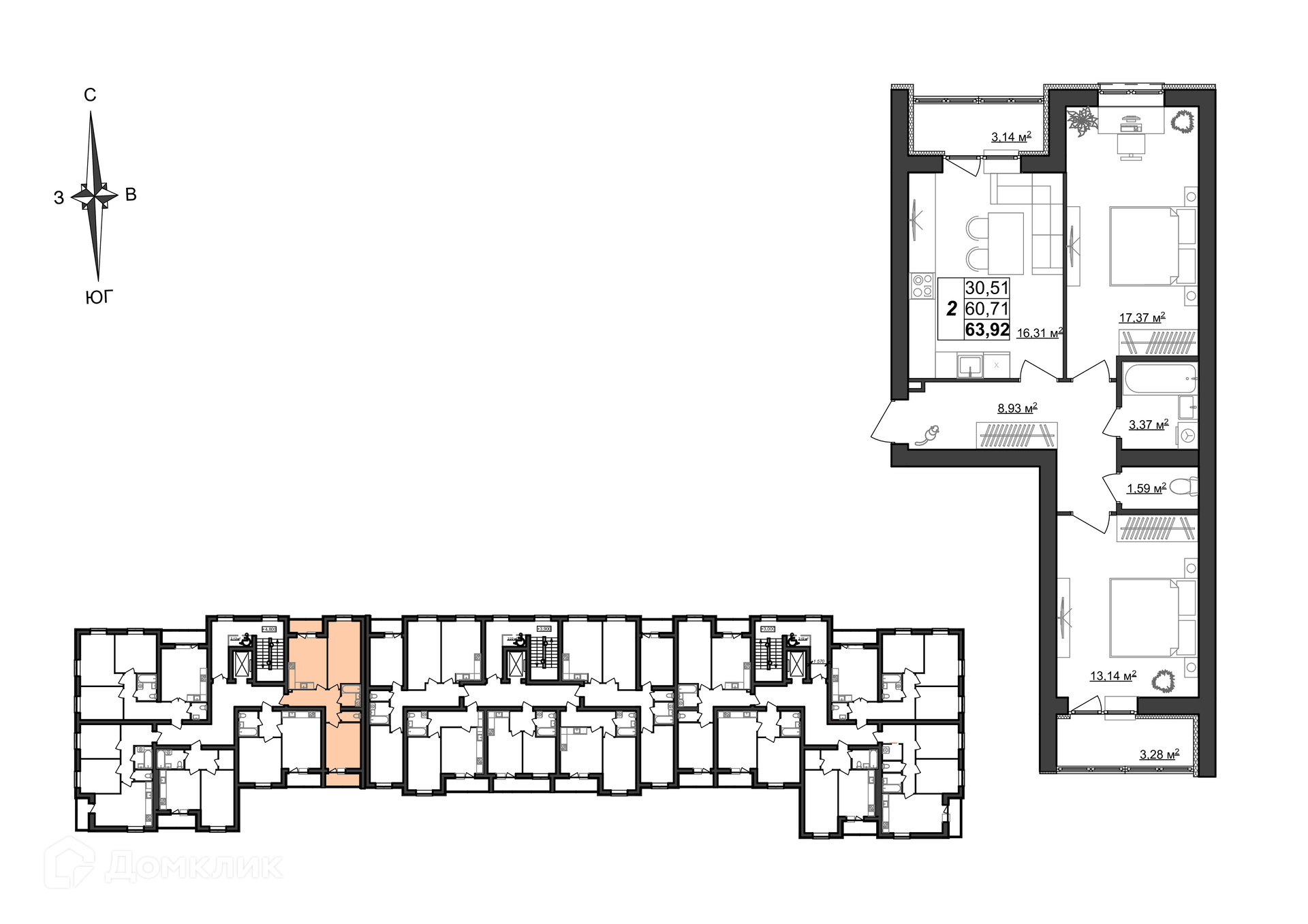
Площадь
Жилая
Кухня
Отделка
Класс жилья
Комнат
Номер кв.
Этаж
Получить субсидию от застройщика
Максимальная скидка на ставку ипотеки!
Срок сдачи: 2 кв. 2026 г.
Площади квартир
Этажность
Количество корпусов
Тип стен
Мы используем файлы cookie. Подробнее о правилах обработки Ваших cookies ИП Наумов С.А. (cookies можно всегда отключить)
В ближайшее время с Вами свяжется наш менеджер, пожалуйста оставьте данные для контакта.
Во время Вашей фиксации - её никто не сможет купить.
Совсем скоро с вами свяжется наш менеджер для уточнения деталей.